Hokejová akadémia v Trnave

Autor: Ing. arch. Ján Tvrdoň,  Ing. Jakub Hanzl, Ing. arch. Miroslava Wagenaar

Návrh hokejovej akadémie pre Trnavský samosprávny kraj je zameraný na výchovu mladých športových talentov a výučbu na jednom mieste.

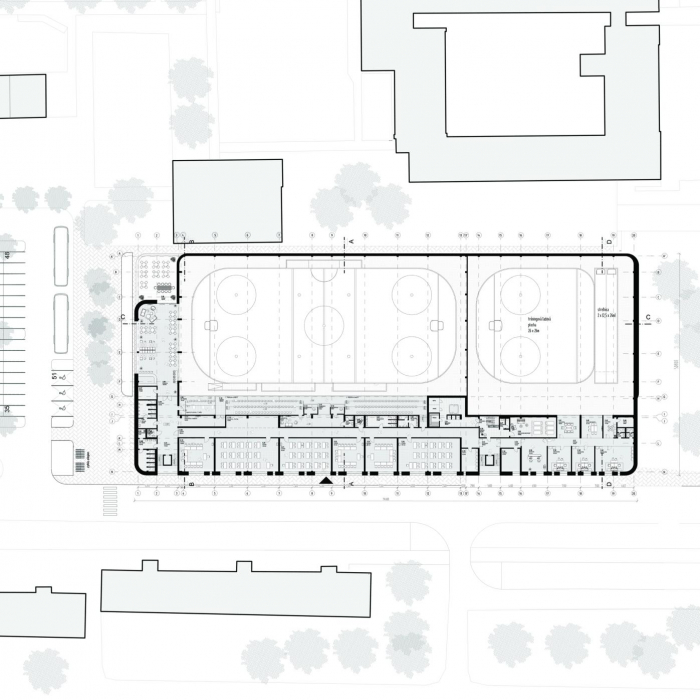
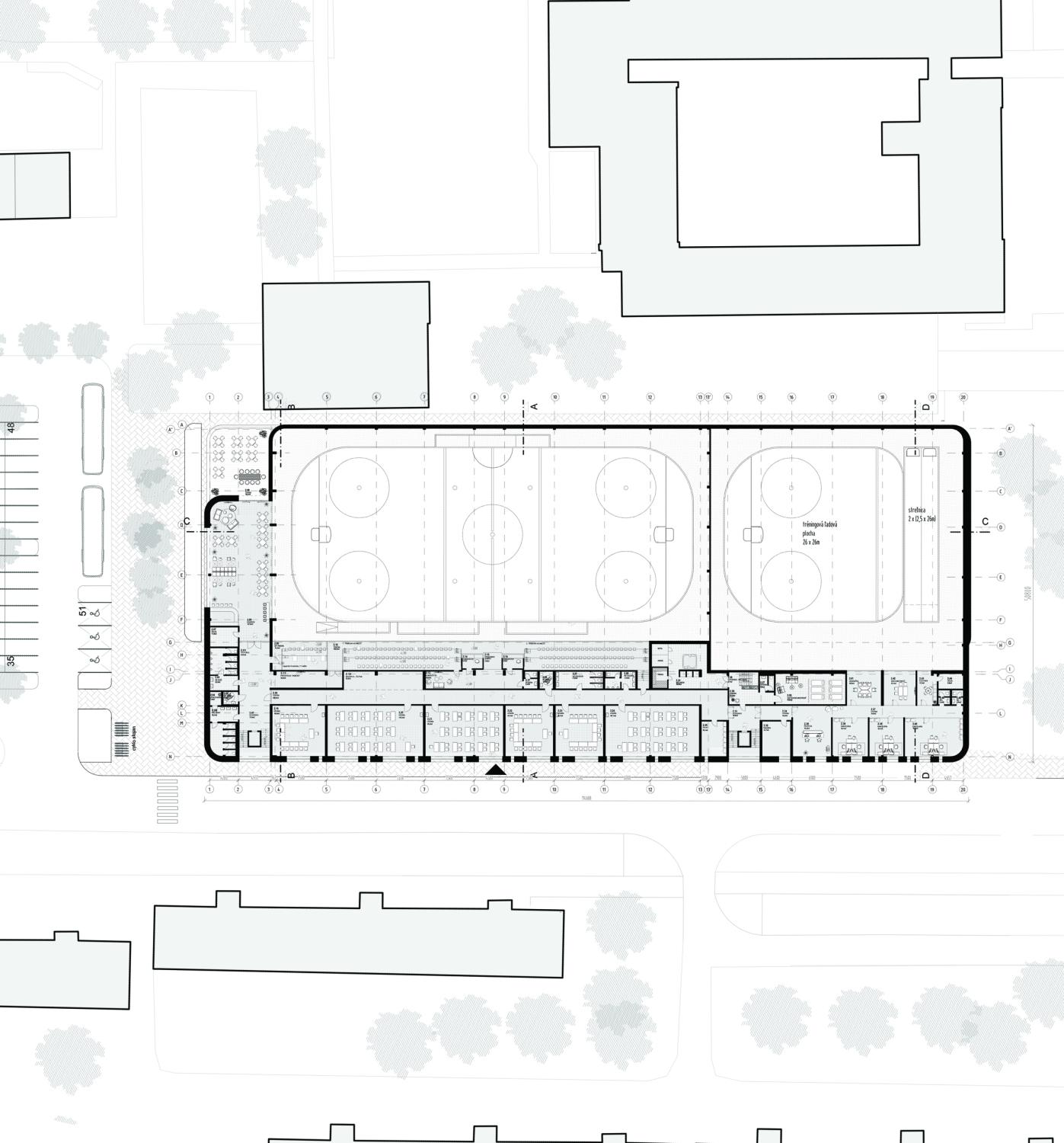
Hokejová hala – má obdlžníkovú pôdorysnú stopu a dve nadzemné podlažia. Na severo-západnom rohu sa nachádza hlavný vstup do objektu a dva bočné vstupy sú umiestnené pozdlž ulice J.G. Tajoského. Parkovisko s 51 parkovacími miestami je navrhnuté pred hlavným vstupom. Na prízemí sa nachádza hlavná a tréningová ľadová plocha, 6 kabín s vybavením pre domácich a dve kabíny pre hostí. Na 1.NP je umiestnené celé technologické zázemie. Na 2.NP sa nachádzajú výučbové priestory, blok administratívy, wellness a kaviareň s výhľadom na ľadovú plochu a terasa. Tribúna ma vyhradenú VIP časť a priestor pre dvoch komentátorov alebo skautov talentov so zázemín a stanovisko pre kamery.

Hmota objektu je tvorená, tak aby odlišnosť funkcí bola čitateľná aj z exteriéru a to členením hmoty a materiálovým stvárnením fasády. Na fasáde na 2.NP budú použité cementové dosky RIEDER alebo TRIMO. Na 1.NP bude použitý rôznofarebný obklad Rieder Stripes s detailejším členením. Obklad bude kladený vertikálne, tak aby bola potlačená horizontalita hmoty. Na hmotu ľadovej plochy je navrhnutý ťahokov s výrezom siluety hokejistov.